Laboratorium Mikrobiologiczne dla WSZ w Elblągu

Projekt Architektoniczno-Budowlany, Projekt Technologiczny

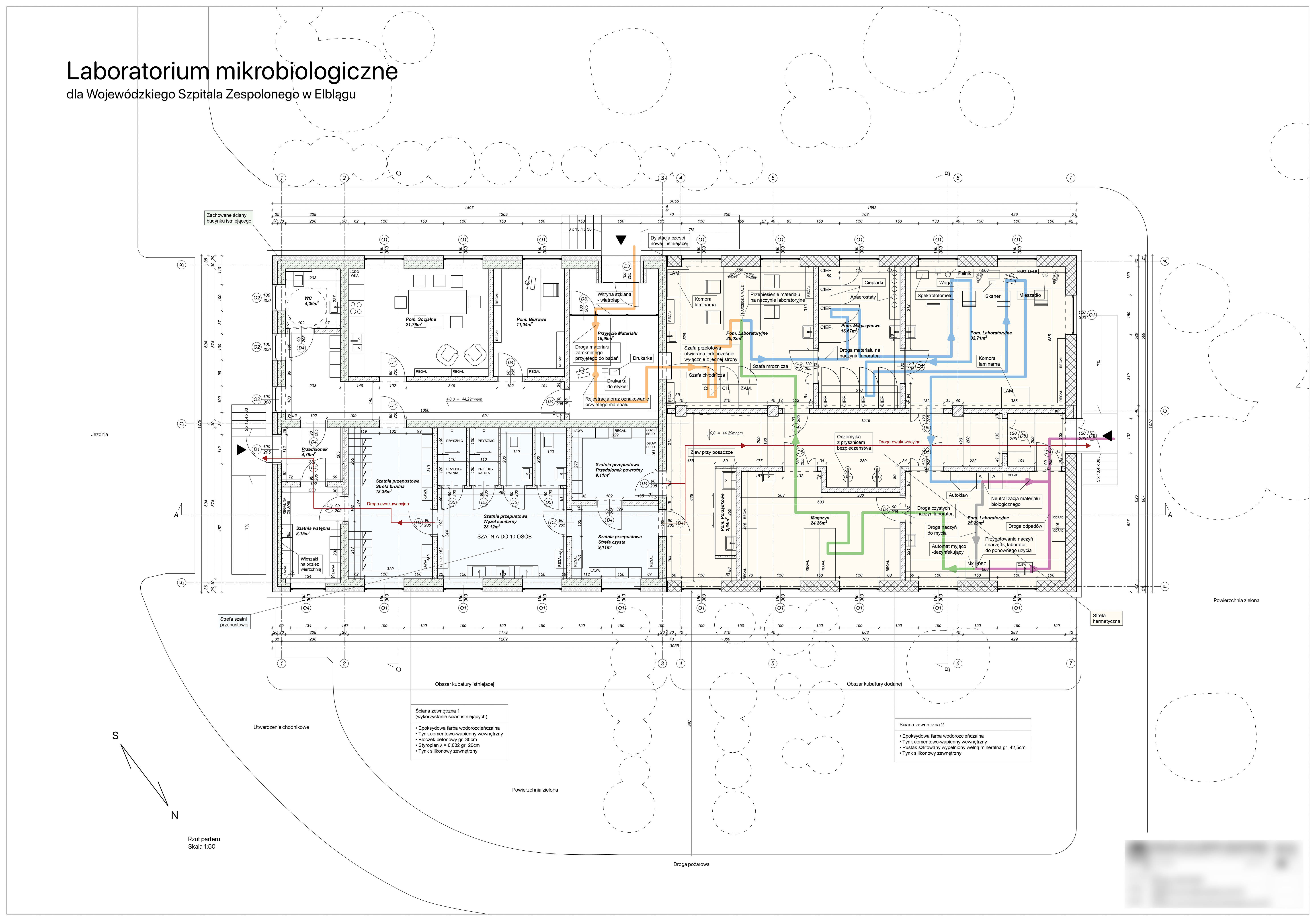
Laboratorium mikrobiologiczne III stopnia hermetyczności, według normy PN-EN 12128, zgodne z klasyfikacją Światowej Organizacji Zdrowia.

Laboratorium Mikrobiologiczne dla WSZ w Elblągu

Jednym z głównych celów projektowych było zredukowanie poczucia izolacji, którego doświadczają pracownicy laboratorium, z uwagi na hermetyczne środowisko pracy, a w efekcie podniesienie ich komfortu psychicznego. Przekłada się on na oczywiste wartości, jak większe zadowolenie z życia, ale również na mniejsze zmęczenie i niższe prawdopodobieństwo popełnienia błędu, co owocuje większym bezpieczeństwem w trakcie pracy.

Laboratorium Mikrobiologiczne dla WSZ w Elblągu

Niezwykle rygorystyczne wytyczne dotyczące budynku, wyposażenia i procedur mają na celu ochronę zdrowia i życia pracowników laboratorium oraz zredukowanie do minimum błędów w wynikach badań. Zapisy zawarte w normach i podręcznikach dotyczą m.in. nieotwieranych okien, wentylacji mechanicznej o rygorystycznych parametrach pracy, stosowania odzieży ochronnej ograniczającej pole widzenia i zakres ruchów, ścisłe strefowanie przestrzeni czystej i brudnej, ściśle określone procedury, w ramach których wykonywane są poszczególne zadania. Wszystkie te czynniki sprawiają, że laboratorium mikrobiologiczne to miejsce, w którym człowiek czuje się szczególnie mocno odizolowany od świata zewnętrznego.

Laboratorium Mikrobiologiczne dla WSZ w Elblągu

Co nie jest częste, laboratorium przewidziane zostało w budynku wolnostojącym, posiadającym dostęp do światła z czterech stron. Zazwyczaj, przyszpitalne laboratoria mikrobiologiczne zlokalizowane są w wydzielonej części większego budynku, co skutkuje ograniczonym dostępem do światła naturalnego i widoków na zewnątrz. Atutem miejsca przeznaczonego pod inwestycję była duża ilość otaczającej zieleni (jak na teren szpitala), w formie małego parku. Zdecydowano, aby częściowo wykorzystać budynek laboratorium istniejącego. Umożliwiło to łatwiejsze podzielenie inwestycji na etapy - w efekcie mniejsze trudności dla funkcjonowania jednostki w czasie budowy. A także zmniejszenie kosztu inwestycji i śladu węglowego dzięki wykorzystaniu fundamentu i ścian konstrukcyjnych budynku istniejącego.

Laboratorium Mikrobiologiczne dla WSZ w Elblągu

Główną decyzją projektową, mająca na celu uwolnienie pracowników od poczucia izolacji, było zastosowanie dużych okien typu fix o wymiarach 150 na 300 centymetrów, opiewających na pełną wysokość pomieszczeń, otwierających wnętrze na zieleń dookoła. Nadmierną penetrację słoneczną uniemożliwiają sąsiadujące drzewa iglaste oraz elektronicznie sterowane rolety zewnętrzne.

Laboratorium Mikrobiologiczne dla WSZ w Elblągu

Intensywność oraz barwę oświetlenia sztucznego definiują obowiązujące normy, jednak dodatkowymi czynnikami wziętymi pod uwagę przy projektowaniu były współczynnik jakości oddawania barw CRI oraz wyeliminowanie efektu mrugania oświetlenia, który często pozostając niezauważalny, oddziałuje na człowieka podprogowo. Zastosowano oświetlenie LED o CRI większym od 90, co sprawia, że postrzegane otoczenie odbierane jest jako bardziej naturalne i rzeczywiste, prawie jak w świetle dziennym. Wszystkie zaprojektowane źródła światła wolne są od efektu mrugania podprogowego, tzw. flicker-free. Dobrą jakość przestrzeni udało się również uzyskać w pomieszczeniu socjalnym dla pracowników. Jest ono zorientowane, podobnie jak większość przestrzeni przeznaczonej do pracy, na południowy-zachód. Posiada ono swobodny dostęp do światła dziennego i widoku na zieleń, a jego wymiary umożliwiają wygodne pomieszczenie całego personelu.

Laboratorium Mikrobiologiczne dla WSZ w Elblągu

Projekty

My

Blog

Kontakt